Zoning Information

City of Liberty Lake Zoning Information

Specific Area Plan Overlay Districts (SAP) describe in more detail the type of development planned for a specific area than is typically found in a Comprehensive Plan or Zoning Map. The City has two SAP overlay districts and their locations are identified on the City Zoning Map.
2024 Zoning Map

StoneHill/Hawkstone/Lakemore District Information

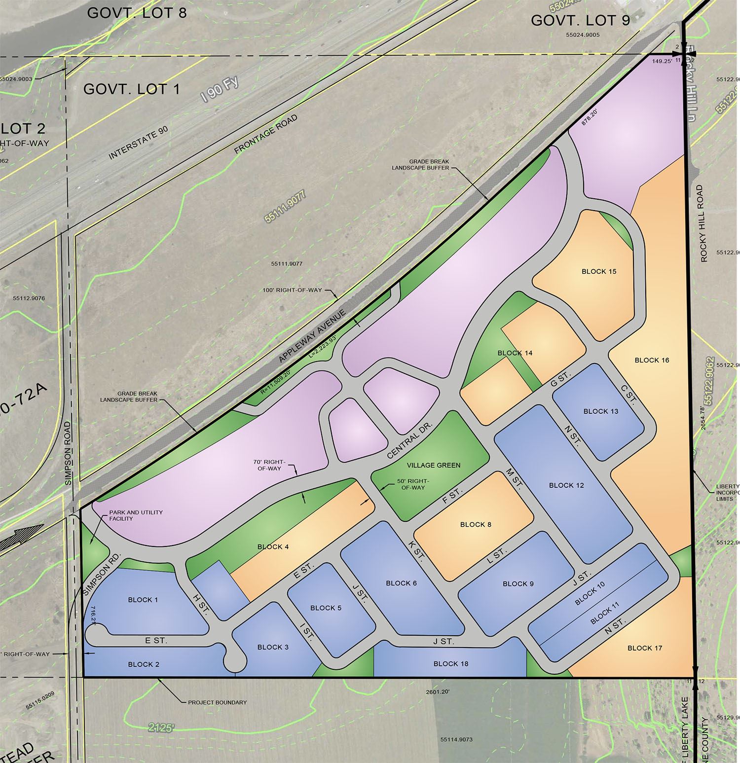
Along the eastern edge of the City is the StoneHill/Hawkstone/Lakemore SAP-06-0001 (formerly called Liberty Village / Hawkstone). SAP-06-0001 functions as supplemental standards to the City Development Code.

River District Information

The River District SAP-08-0001 serves primarily as a standalone development code for that portion of the City, although some portions do reference the City Development Code.

Liberty Lake River District Master Plan Map